Scan to BIM Services

At G&P Associates, we transform existing buildings into precise digital twins — giving you the confidence to design, renovate, or restore with clarity. Our Scan-to-BIM service captures every square foot of your site with high-definition laser scanning, then delivers fully modelled, architect-ready BIM and CAD deliverables that mesh seamlessly with your workflow. Serving the Northeast ( NY / NJ / PA / MD / CT ), we help architects, engineers, and contractors hit deadlines, reduce change orders and streamline execution.
Our team of experienced professionals uses industry-standard software to create intelligent and highly accurate models, reducing errors and improving project efficiency. Our Scan to BIM services provide clients with valuable data for effective decision-making in all aspects of the construction process.
The above shows a Scan to BIM as-built Revit model from a community center in Peekskill, NY. On this project we 3d laser scanned the interior, exterior, and roofs.
By deploying multiple 3D scanners, our architectural digital twin team completed the entire as-built field survey in just five hours—minimizing disruption to the community center’s daily operations.
We captured the exterior using 3D laser scanning in dual-HDR color. After registering and aligning the LiDAR scans, we created a detailed as-built Revit model. Below is a view of the colorized scan overlaid onto the final as-built model.

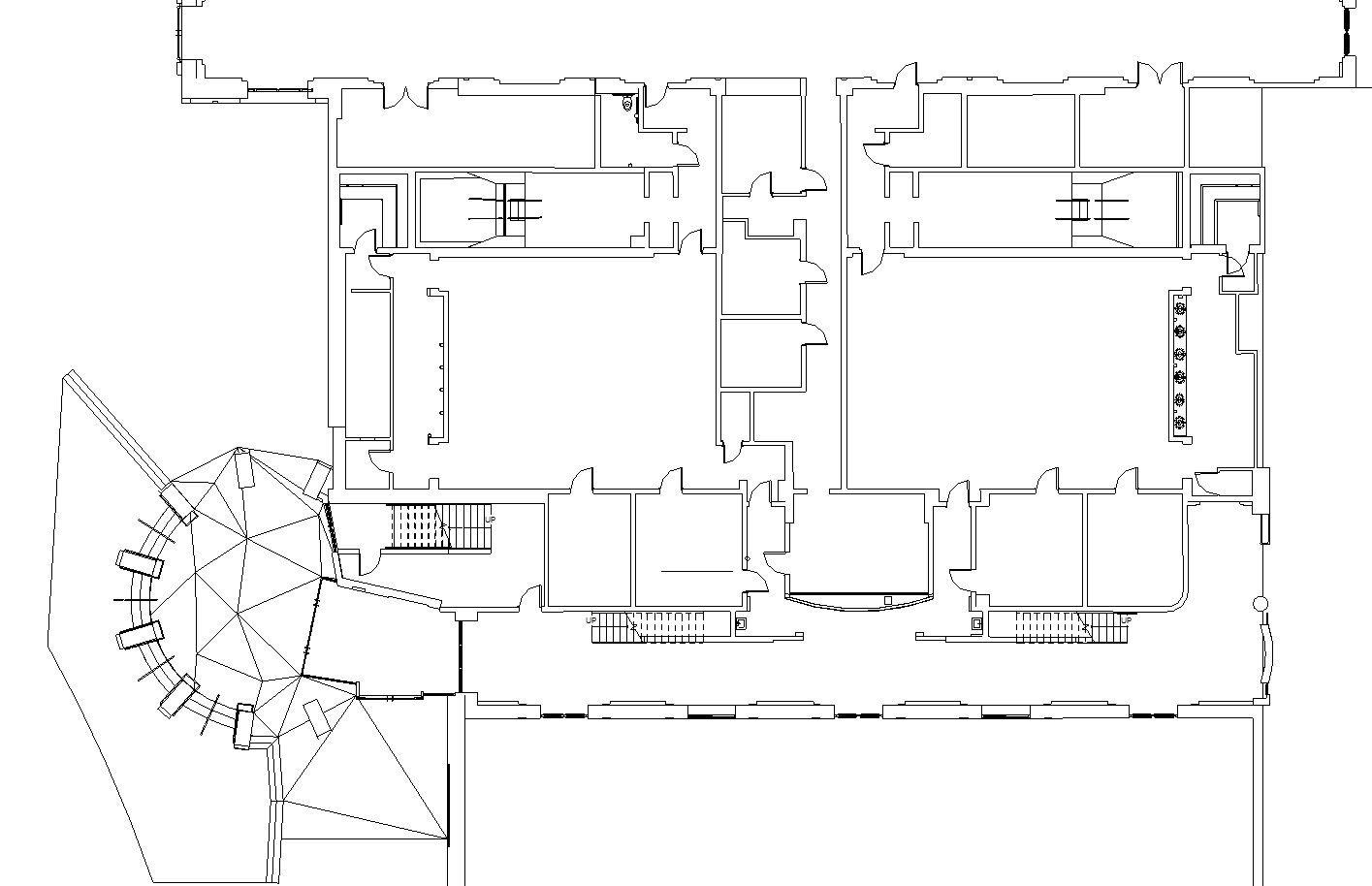
Once the Scan-to-BIM model was completed, we quickly generated 2D as-built floor plans, reflected ceiling plans, elevations, roof plans, and façade drawings for the architect. Below is an example of a floor plan extracted from the Revit as-built model, shown with the exterior scan data overlaid.
AutoCAD As-build Facade, Elevations, and Sections can be created at a "click of the button" once the Scan to BIM Model is complete. Below shows the as-built facade drawing extracted from the model.

We also rendered the finished Scan to BIM model for presentation purposes. Below shows a rendered as-built Revit. The point cloud modeled Revit model is very accurate including the light poles and sidewalk pavers.

We have highly trained Architectural, Engineering, Construction, and BIM technicians who are always on-time and budget, ready to provide you with scan to BIM services.
Our deliverables can be in AutoCAD, Revit, Rhino, or Microstation.
Our scan to BIM company uses the most current high accuracy (+-1/8") laser scanners.
We produce detailed:
- 2d As-Built Floor Plans
- 2d As-Build Ceiling Plans
- 2d As-Built Building Exterior Facade Plans
- 3d Scan to BIM Models
- 3d As-Built Models in AutoCAD, Rhino, Revit
- Floor Deviation and Heat Map Plans
- Facade Photogrammetry from camera's and drone's rectified to Laser Scans
- As-Build Topography
- Realistic Walkthroughs and Flyovers
- Raw Point Clouds
Call Today: 607-327-1106
Email: cgibbons@gpassociates.org
We have locations in New York, Pennslyania, Maryland and New Jersey serve the entire Northeastern United States.
Flushing Ave, Brooklyn NY
Type: Scan to BIM
- Brooklyn Scan to BIM model of several commercial buildings.
- Utilizing several 3d laser scanners we were able to laser scan the complete interior, exterior, roofs in 2 days.
Washington DC House
Type: Scan to BIM
- Washington DC As-built Scan to BIM model of residential house and property.
- Utilizing several 3d laser scanners we were able to laser scan the complete interior, exterior, roofs in 2 hours.
- From the completed Scan to BIM model we were able to quickly create 2d as-built drawings.
Cornell Stair Case
Type: Scan to BIM
- Provided Ithaca, NY 3d service laser scanning services and as-built Scan to BIM model of staircase at historic Cornell Plant and Science Building.
- The Ithaca, NY as-built staircase model providing the restoration architects with invaluable information.
Harrisburg Train Station
Type: Scan to BIM
- Provided Harrisburg, PA 3d Laser scanning services of historic train station for structural roof replacement.
- Created a complete Scan to BIM model of Harrisburg station from captured 3d lidar data.
- Upon completion of the Revit model we extracted complete Harrisburg as-built drawings of the roof structure.
Baltimore Commercial Building
Type: Scan to BIM
- Provided Baltimore 3d laser scanning and as built Scan to BIM model of city block located in downtown Baltimore. The purpose was a commercial to residential condo conversion.
- Utilizing several 3d laser scanners we were able to laser scan the complete exterior of the block (in color) and the interior of major 10 story building in 2 days.
- From the completed Baltimore Scan to BIM model we were able to quickly create 2d as-built floor and ceiling plan drawings.
Asbury Park, NJ
Type: Scan to BIM
- Asbury Park as built Scan to BIM model of residential house and property.
- Utilizing several 3d laser scanners we were able to laser scan the complete interior, exterior, roofs in 2 hours.
- From the completed Asubry Park Scan to BIM model we were able to quickly create 2d as-built drawings.
Clinton, MD
Type: Scan to BIM
- Clinton, MD 3d laser scanning service and as built Scan to BIM model of residential house and property.
- Utilizing several 3d laser scanners we were able to laser scan the complete interior, exterior, roofs in 2 hours.
- From the completed Scan to BIM model we were able to quickly create 2d as-built drawings.
Manhattan, NY
Type: Scan to BIM
- New York as built Revit model of several commercial buildings.
- Utilizing several as built 3d laser scanners we were able to laser scan the complete interior, exterior, roofs in 4 hours of the Manhattan building.
- Upon completion of the Manhattan as built Revit model we extracted as built floor and ceiling plans and as built facade drawings.
Philadelphia Library
Type: Scan to BIM
- Philadelphia as built Revit model of library utilizing reality capture data.
- Upon completion of Philadelpia 3d model we extracted as built floor plans, as built ceiling plans, and as built exterior facade drawings.
Hudson Valley, NY
Type: Scan to BIM
- Provide Hudson, NY 3d Laser scanning services of exterior, interior, roofs for major remodeling of building.
- Provided complete as-built Scan to BIM model.
Catskill, NY
Type: Scan to BIM
- Provided Catskill, NY 3d Laser scanning services of exterior for major remodeling of building.
- Provided complete Catskill, NY as-built facade drawings and Rino BIM model from scan data.
Peekskill, NY
Type: Scan to BIM
- Provided Peekskill, NY 3d Laser scanning for interior and exterior for major remodeling of civic building.
- Provided complete as-built Revit model from scan data.
- As-build structural model.
- Created Peeksill, NY Scan to BIM model of exposed bulding facades
Norfolk Street, Manhattan, NY
Type: Scan to BIM
- Provided Manhattan 3d laser scanning services and complete as-built Revit model of apartment.
- Purpose of NYC architectural survey was for architect company and homeowner to make renovations of the space.
- With accurate as-built building documentation the owner and architect had complete confidence in design decisions.
- We have been providing NYC with laser scanning and as-built services since 2005.
Park Avenue, NYC
Type: Scan to BIM
- Provided NYC 3d Laser scanning contractor services for interior and exterior for major remodeling of building.
- Provided complete as-built Revit model from captured reality data.
- Created NYC as-built drawings and model of all structural elements.
- Created as-built facade model of building to help comply with FISP NYC Local Law 11 and NYC Historical Society rules and regulations.
10th Avenue, Manhattan, NY
Type: Scan to BIM
- Laser scanning of exterior and interior of building located in New York City.
- Complete 2d AutoCAD as-built of facades, interior floors, and roof structure.
Varick Street, Manhattan, NY
Type: Scan to BIM
Monticello, NY
Type: Scan to BIM
- Colorized 3d laser scanning of steel structure.
- Complete As-Built Revit model of steel structure including bolted connections.
West End Avenue, NYC
Type: Scan to BIM
- Provided Laser scanning for interior and exterior for major remodeling of building.
- Provided complete as-built strutural BIM model from scan data.
- As-build structural model included column connections.
- Existing conditions BIM model of north and west facades to comply with FISP NYC Local Law 11 and NYC Historical Society rules and regulations.
6th Avenue, NYC
Type: Scan to BIM
- 3d high-definition laser scanning of facade for major renovations.
- Complete accurate Autodesk Revit as-built model of facade which included mullions, columns, glass, etc.
West End Avenue, Manhattan, New York
Type: Scan to BIM
- Provided NYC Renovation Architect Laser scanning for project in Manhattan, NY.
- With scan data provided detailed and very accurate AutoDesk Revit Model.
- The NYC apartment renovation model allowed the collaboration between the architect and owner to ensure a successful project that beat all expectations.
- The collection of data took approximately 2 hours thus minimizing inconveniences to the owner, architect, and building manager.
Hudson Street, Hoboken, NJ
Type: Scan to BIM
- We provided laser scanning services and an accurate Revit BIM model for a historic building renovation project in Hoboken, NJ.
- The accurate building documentation we provided; facilitated a very successful on-time, and on-budget project.
New York City Hall - New York, NY
Type: Scan to BIM
- Created Scan to BIM Model (BIM) of exterior using scan data and existing plans for NYC facade restoration contractor.
- Provided NYC architectural survey company 3d-Laser scanning services of east and west attics of NYC City Hall.
- Complete 3D-model as-built of west attic structure.
W 12th Street, New York, NY
Type: Scan to BIM
- Provided NYC Remodeling Contractor 3d laser Scanning of an apartment for construction fit-up.
- Created as-built Rhino model from laser scan data. Model consisted of existing architectural, mechanical, and piping.
- NYC Renovation Contractor used the Rhino model to verify existing conditions and work out construction problems. Collection of an accurate as-built is the first step for remodeling of NYC apartments.
West End Avenue - New York, NY
Type: Scan to BIM
- Created Building Information Model (BIM) of structure interior using scan data.
- 3D-Laser scanning of entire apartment interior.
- 3D-modeling of entire apartment.
70th Street, Manhattan, New York
Type: Scan to BIM
- Provided NYC remodeling architect Laser Scanning and Creation of an Architectural BIM Model of a historic building in Manhattan, NY.
- Architect and owner needed complete As-built BIM model to plan successful Manhattan, NY building restoration, file permits with NYC Building Department and NYC Historical Society.
Carnegie Mellon University - Pittsburgh, PA
Type: Scan to BIM
- Provided NYC commercial renovation architect with 3d laser scanning services for Weigand Gynmasium Complex. Scan of entire interior and exterior of complex.
- Created a very accurate and detailed as-built model in Architectural Revit of the entire complex for a new building addition.
Exterior Revit Model, Newark, NJ
Type: Scan to BIM
- Provided Newark, NJ Renovation Architect laser scanning services and an as-built facade model in Revit. The project was in Newark, NJ.
- Purpose of the accurate building documentation was for facade restoration and a possible building addition.
Schools - Buffalo, NY
Type: Scan to BIM
- Provided Buffalo commercial renovation architect with laser scannnig, survey, and as-built BIM model of entire school district in the Buffalo, NY area.
- Created As-build BIM model of all elements including basketball courts, swimming pools, locker rooms, weight rooms, class rooms, MEP items.
- Software used to create BIM model included Cyclone and Architectural Revit.
SUNY Science Center - Binghamton, NY
Type: Scan to BIM
- Created Building Information Model (BIM) of entire structure using contract drawings for Binghamton, NY general contractor.
- Provided 3D-Laser scanning and modeling of entire basement plaza area and adjacent buildings at SUNY campus pre-construction.
- Provide NY general contractor with as-build data of new steel structure for quality control purposes.
- Provided NY MEP contractor with as-build data of new piping, ductwork, etc. for construction quality control purposes.
Staff Kings - Binghamton, NY
Type: Scan to BIM
- 3D-Laser Scan of building
- 3D-modeling of building
Misc BIM
Type: Scan to BIM
Residential House - Binghamton, NY
Type: Scan to BIM
- Created Building Information Model (BIM) of entire structure using scan data.
- 3D-Laser scanning of interior and exterior of residence.
- 3D-modeling of interior and exterior of structure.
130th Street - New York, NY
Type: Scan to BIM
- Created Building Information Model (BIM) of structure interior using scan data.
- 3D As-Built of 5 interior floors.
Apartment-Boston, MA
Type: Scan to BIM
- Created BIM model from laser scan data using Autodesk Architectural Revit and Autodesk Revit MEP.
- 3d Model used for rehabilitation of apartment complex in Boston, MA.
Industrial Building-Corning, NY
Type: Scan to BIM
- Provide 3d laser scanning services for interior of industrial building located in Corning, NY.
- As-Built 3d AutoCAD model from scan data to verify steel and update existing plans.
Residential House-Garrison, NY
Type: Scan to BIM
- 3d laser scanning of interior and exterior of several homes located in Garrison,NY.
- Produced complete As-Built BIM models, using Architectural Revit.
Ranch House-Garrison, NY
Type: Scan to BIM
- Provided Garrsion, NY Remodeling Architect laser scanning of complete interior and exterior of ranch to produce very accurate asbuilt.
- Delivered complete BIM model using Architectural REVIT.
Post&Beam Barn-Garrison,NY
Type: Scan to BIM
- 3d laser scanning entire exterior and interior of multi level barn located in Garrison,NY.
- Produced a complete asbuilt BIM model of barn, including columns, beams, and general framework using Architectural Revit.
Washington DC
Type: Scan to BIM
- 3d Laser Scan Office Space for Tenant Fit-up in Washington DC.
- Produced complete BIM model using MEP Revit and Architectural Revit.
















.jpg)

























































































































































































