Facade Surveys
Façade & Exterior As-Built Surveys
Accurate • Laser-Scanned • BIM-Ready • Ideal for Renovation & Restoration
(Serving NYC, NY, NJ, CT, PA, MD, MA, and the DC Metro Area)
We provide high-accuracy façade as-built surveys using advanced 3D laser scanning, photogrammetry, and point-cloud documentation across the Northeast and Mid-Atlantic. Our exterior as-built deliverables give architects, engineers, and building owners the precise measurements they need to design confidently—without relying on outdated drawings or manual field measurements.
If you are planning a renovation, restoration, historic preservation project, or exterior upgrade, our façade as-builts ensure you start with verified, dimensionally accurate existing conditions.
We have produced hundreds of façade surveys for building restoration companies, developers, architects, and engineers. Below shows a NYC façade survey with a colorized point cloud and basic façade drawing (Manhattan, NY).

Why Façade As-Builts Matter
Exterior walls, windows, parapets, architectural details, and façade elements often vary from original drawings—or have changed over decades of repairs and modifications.
Accurate façade documentation helps project teams:
-
Eliminate guesswork during design
-
Avoid costly field verification
-
Support restoration and exterior detailing
-
Coordinate window replacements or façade upgrades
-
Capture true dimensions of historic or irregular façades
-
Integrate the exterior geometry into BIM models
-
Ensure alignment between structure, interior, and exterior elements
Our façade as-builts provide reliable, high-resolution data for any exterior-focused project.

What We Deliver
3D Exterior Point Clouds
-
Full façade and building envelope scans
-
HDR or black-and-white LiDAR capture
-
Registered, aligned, and cleaned point cloud files
-
Formats: RCP, E57, LAS, PTS, and others
2D Exterior & Façade As-Built Drawings
-
Exterior building elevations
-
Window and door openings
-
Fenestration layout
-
Parapet and roof-edge geometry
-
Cladding and architectural detail lines
-
Horizontal and vertical control lines
-
Sections (where façade geometry allows)
3D Scan-to-BIM Façade Models
-
Revit façade models (LOD 200–350)
-
Surface and mass models for early design phases
-
Detailed models for restoration and façade redesign
-
Export to Revit, IFC, Rhino, AutoCAD
High-Resolution Exterior Photography
-
Photo documentation of the full building envelope
-
Optional drone photography for taller or hard-to-reach façades
(Note: We do not perform condition assessments, engineering investigations, or façade inspections. Our focus is strictly on accurate as-built documentation.)
Below shows a façade survey (Brooklyn, NY) in moderate detail: 
Our Exterior Survey Process
1. Pre-Survey Planning
We review any available drawings and define the scope, access requirements, and scanning strategy.
2. On-Site 3D Laser Scanning
Using high-precision scanners, we capture millions of 3D measurement points across the entire building façade.
3. Supplemental Photography
High-resolution terrestrial or drone photos support CAD/BIM modeling and documentation clarity.
4. Point-Cloud Registration & Processing
All scans are registered, cleaned, and merged into a cohesive, accurate exterior point cloud.
5. CAD or BIM Production
From the point cloud, our team produces detailed:
-
Façade as-built drawings
-
Scan-to-CAD elevations & sections
-
Scan-to-BIM façade models
6. Digital Deliverables
We deliver drawings, BIM models, point cloud files, and imagery via secure digital transfer.
Below shows a partial facade survey from Philadelphia, PA.

Who Uses Façade As-Builts
Architects
For renovation, restoration, window replacement, façade redesign, or adaptive reuse.
Engineers
To integrate true exterior geometry into structural or building envelope planning.
Historic Preservation Teams
For capturing accurate measurements of aging or ornamented façades.
Developers & Owners
For planning upgrades, documenting existing conditions, and supporting renovation permitting.
Contractors
For verifying dimensions before fabrication or installation of exterior systems.
Why Choose G&P Associates
-
Specialists in façade and exterior as-built documentation
-
Up to ±1/8″ accuracy with modern LiDAR equipment
-
Ability to mobilize multiple scanners for large buildings
-
In-house CAD and BIM experts
-
Experience with commercial, residential, industrial, institutional, and historic façades
-
Fast turnaround with minimal site disruption
-
Serving NY, NYC, NJ, CT, PA, MD, MA, and the DC Metro
You get clean, accurate, ready-to-use exterior documentation — not partial or inconsistent measurements.
Ideal Uses for Façade As-Builts
-
Renovation design
-
Historic restoration
-
Façade replacement
-
Window & door replacement programs
-
Exterior cladding upgrades
-
Building envelope redesign
-
Adaptive reuse projects
-
BIM coordination
-
Pre-construction as-built documentation
Start Your Façade As-Built Survey Today
Get accurate exterior measurements and documentation you can rely on for any renovation or restoration project.
Contact G&P Associates:
📞 607-327-1106
✉️ cgibbons@gpassociates.org
Sample Facade Pdf's
- 2d As-built AutoCAD Residential House Facade and Floor Plans
- 2d As-built AutoCAD School Building Elevation and Floor Plans
- 2d As-built AutoCAD Commercial Buiding Facade and Floor Plans
- 2d As-build AutoCAD Church Facade Plans
- Misc. As-built 3d AutoCAD and Revit Facade Models
- 2d As-built AutoCAD Historic Residential House Facade Plans
- 2d As-built Commerical Facade Drawings for Historical Commission
Service Areas
We provide façade and exterior as-built surveys throughout:
New York
New York City (NYC), Manhattan, Brooklyn, Queens, Bronx, Staten Island, Long Island, Westchester, Albany, Buffalo, Rochester, Syracuse, Ithaca, and surrounding regions.
New Jersey
Jersey City, Hoboken, Newark, North NJ, Central NJ, Princeton, New Brunswick, Hackensack, and the Jersey Shore.
Connecticut
Stamford, Norwalk, Hartford, New Haven, Greenwich, Darien, Westport, and surrounding towns.
Pennsylvania
Philadelphia, Pittsburgh, Harrisburg, Allentown, Bethlehem, Lancaster, and Scranton.
Maryland
Baltimore, Bethesda, Silver Spring, Rockville, Frederick, and nearby regions.
Massachusetts
Boston, Cambridge, Worcester, Springfield, Pittsfield, and the Berkshires.
Washington, DC Metro
Washington, DC, Northern Virginia, and suburban Maryland.
If your project is outside these regions, we can often still support it — please contact us.
Park Avenue, NYC
Type: Architectural Facades
- Provided Laser scanning for interior and exterior for major remodeling of building.
- Provided complete as-built strutural BIM model from scan data.
- As-build structural model included column connections.
- Existing conditions BIM model of north and west facades to comply with FISP NYC Local Law 11 and NYC Historical Society rules and regulations.
Catskill, NY
Type: Architectural Facades
- Provided Laser scanning of exterior for major remodeling of building.
- Provided complete as-built facade Revit and Rino BIM model from scan data.
29th Street (Manhattan, NY)
Type: Architectural Facades
Audubon Avenue, New York, NY
Type: Architectural Facades
Newark, NJ
Type: Architectural Facades
- Laser scanning of exterior facades and roofs.
- Architectural Revit As-built of building exterior facades and roofs for major renovation and building addition.
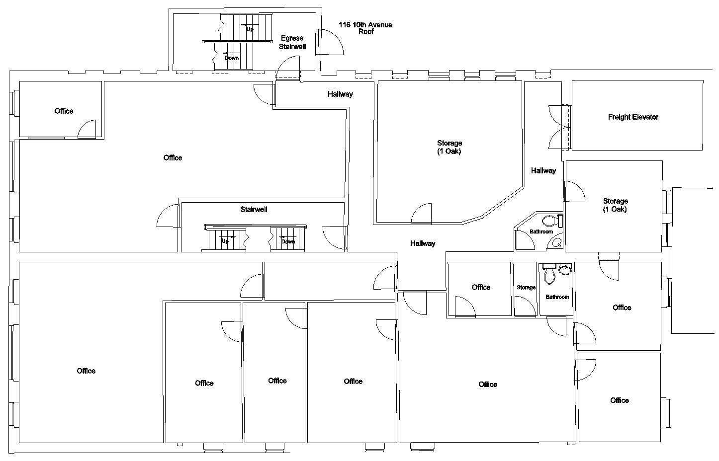
10th Avenue, Manhattan, NY
Type: Architectural Facades
- Laser scanning of interior and exterior of building located in New York City.
- As-built of exteior facades, roofs, and floors.
West End Avenue, NYC
Type: Architectural Facades
- Provided Laser scanning for interior and exterior for major remodeling of building.
- Provided complete as-built strutural BIM model from scan data.
- As-build structural model included column connections.
- Existing conditions BIM model of north and west facades to comply with FISP NYC Local Law 11 and NYC Historical Society rules and regulations.
6th Avenue, NYC
Type: Architectural Facades
- 3d high-definition laser scanning of facade for major renovations.
- Complete accurate Autodesk Revit as-built of facade which included mullions, columns, glass, etc.
Clinton Avenue, Brooklyn, NY
Type: Architectural Facades
- Laser scanning of building in New York City.
- Provided complete 2d-AutoCAD facade As-build of exterior facades.
- Produced 2d floor plans of historic church.
New York City Hall
Type: Architectural Facades
- Created Building Information Model (BIM) of exterior using scan data and existing plans for NYC facade restoration contractor.
- Provide NYC structural engineering company 3d-Laser scanning services of east and west attics of NYC City Hall.
- Complete 3D-model of west attic structure.
Denney Avenue, Boston, MA
Type: Architectural Facades
- Laser scan of facade and asbuilt documentation for project in Boston, MA.
- Complete facade 2d-AutoCAD asbuilt for restoration engineers.
West 86th Street, Manhattan, NY
Type: Architectural Facades
Varick Street, New York City
Type: Architectural Facades
Facade Restoration, New York
Type: Architectural Facades
- Produced architectural as-built exterior drawings for five buildings on campus. Extracted drawings from laser scans provide by prime.
- Produced contour maps of exterior building facades for 6 buildings on campus.
Commercial Facade Restoration - New York, NY
Type: Architectural Facades
- 2D-planworks, elevation drawings, and cross sections of entire structure using 3d laser scan data.

















.jpg)





































